TOP W7
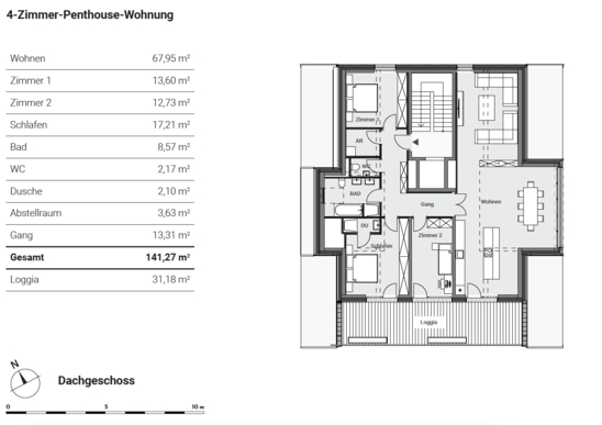
4-Zimmer-Penthouse-Wohnung
Etage: Dachgeschoss
Nutzfläche: 141,27 m²
Zimmer: 4
Ausstattung: Loggia, Tiefgaragenstellplatz, Lift uvm.
Kaufpreis: auf Anfrage
6330 Kufstein
Objektart:
7 hochwertige Eigentumswohnungen
Baubeginn: Sommer 2024
Fertigstellung: Frühjahr 2026
Ich freue mich auf ihre Nachricht.

Sie möchten sich vor Ort ein Bild von Ihrem Wunschobjekt machen?
Gerne organisiere ich einen Besichtigungstermin mit Ihnen. Oder Sie tragen im unten stehenden Formular Ihre Kontaktdaten ein, damit ich mich mit Ihnen in Verbindung setzen kann.

Mit einem * markierte Felder sind Pflichtfelder.

Mario Tribus
Vertriebsleiter
T +43 5372 220 80 - 100
M +43 664 525 22 94
Jasmin Rainer, BA
Vertrieb
T +43 5372 220 80 - 100
M +43 676 3283 741